Alain RIONDET Négociateur
Télécharger la fiche
+3
Nouveauté

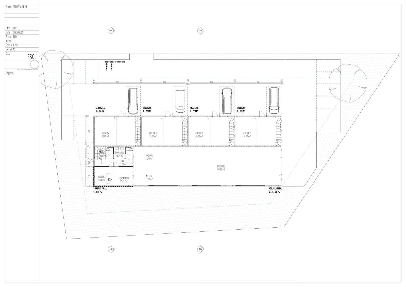
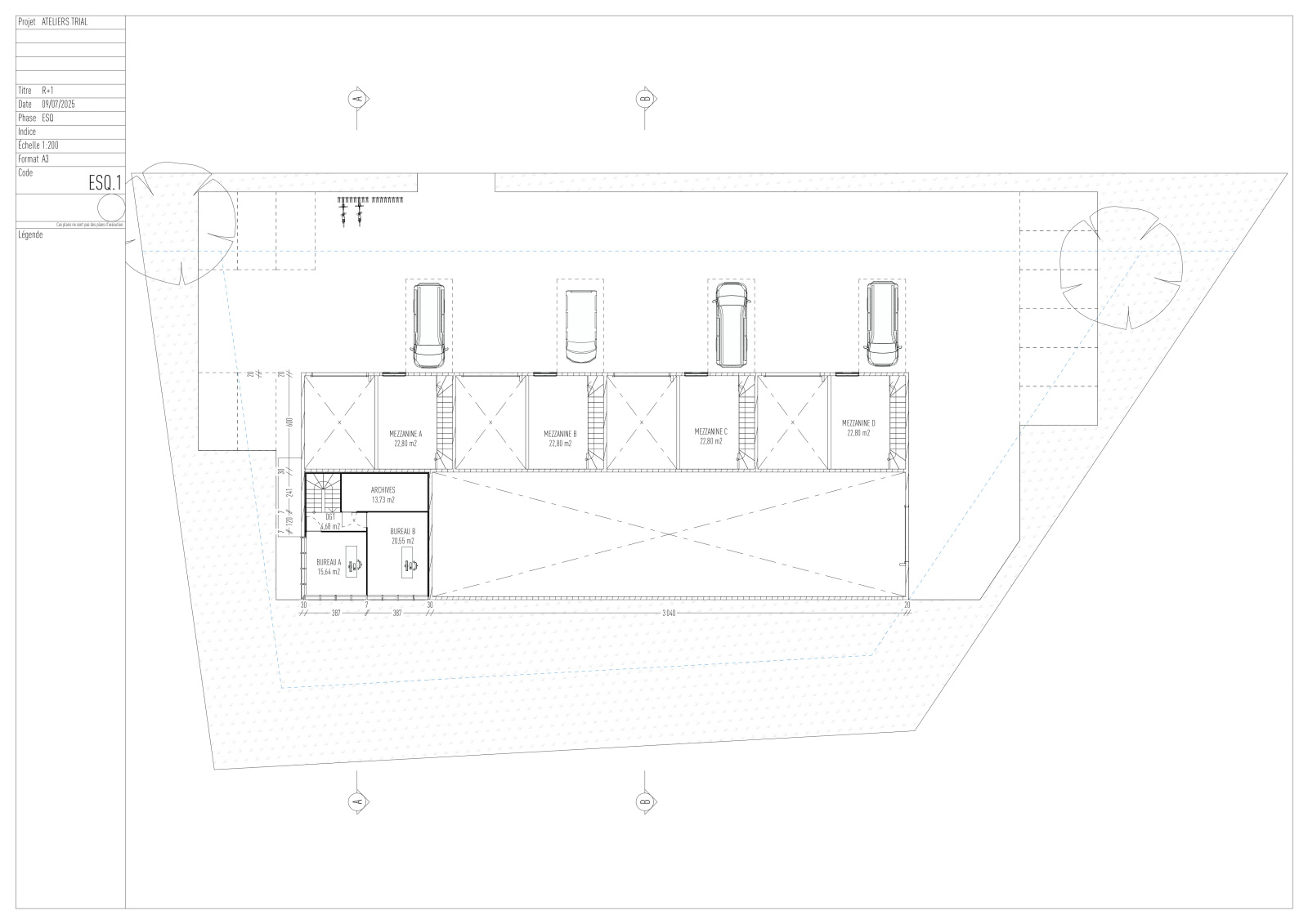
Local d'activité 77 m²

Rives (38140)
700 € / mois HT * HT : Hors Taxes Référence 228

Caractéristiques de ce bien

Activités

  • Type de transaction Local d'activité

Agencement

  • Superficie m2 77 m²
  • Vue Chartreuse

Equipements

  • Chauffage individuel : convecteur (electrique)

Secteur

  • Code postal 38140
  • Ville Rives

Diagnostics & compléments

  • Année de construction 2026

A propos de ce bien

Rives, local d’activité neuf et indépendant de 77 m², idéal pour une activité professionnelle, disponible dès le 1er Août 2026.

Il se compose d’un espace principal avec porte d’entrée et porte sectionnelle motorisée (hauteur 3 m), d’un coin sanitaire (WC, lavabo) et d’une mezzanine.

Sol en béton quartz et éclairage LED complètent ses prestations.

Loyer : 700 € HT / mois
Dépôt de garantie : 2 100 €

Honnoraires d'agence : 15% du loyer annuel.

Possibilité d'y adjoindre 3 autres locaux identiques

Contact : Alain RIONDET 0624347527

Diagnostics énergétiques

Consommation énergétique
A B C D E F G
Emission de gaz à effet de serre
A B C D E F G
DPE ANCIENNE VERSION

Informations financières

Loyer HT 700 € / mois
Honoraires HT charge locataire 1 260 €
Dont état des lieux Non renseigné
Dépot de garantie 2 100 €
Bail commercial
Echéance du bail 2026-08-01

Autour du bien

  • Commerces et santé
  • Loisirs
  • Ecoles
  • Transports
  • Pratique