 
         
                     
                         
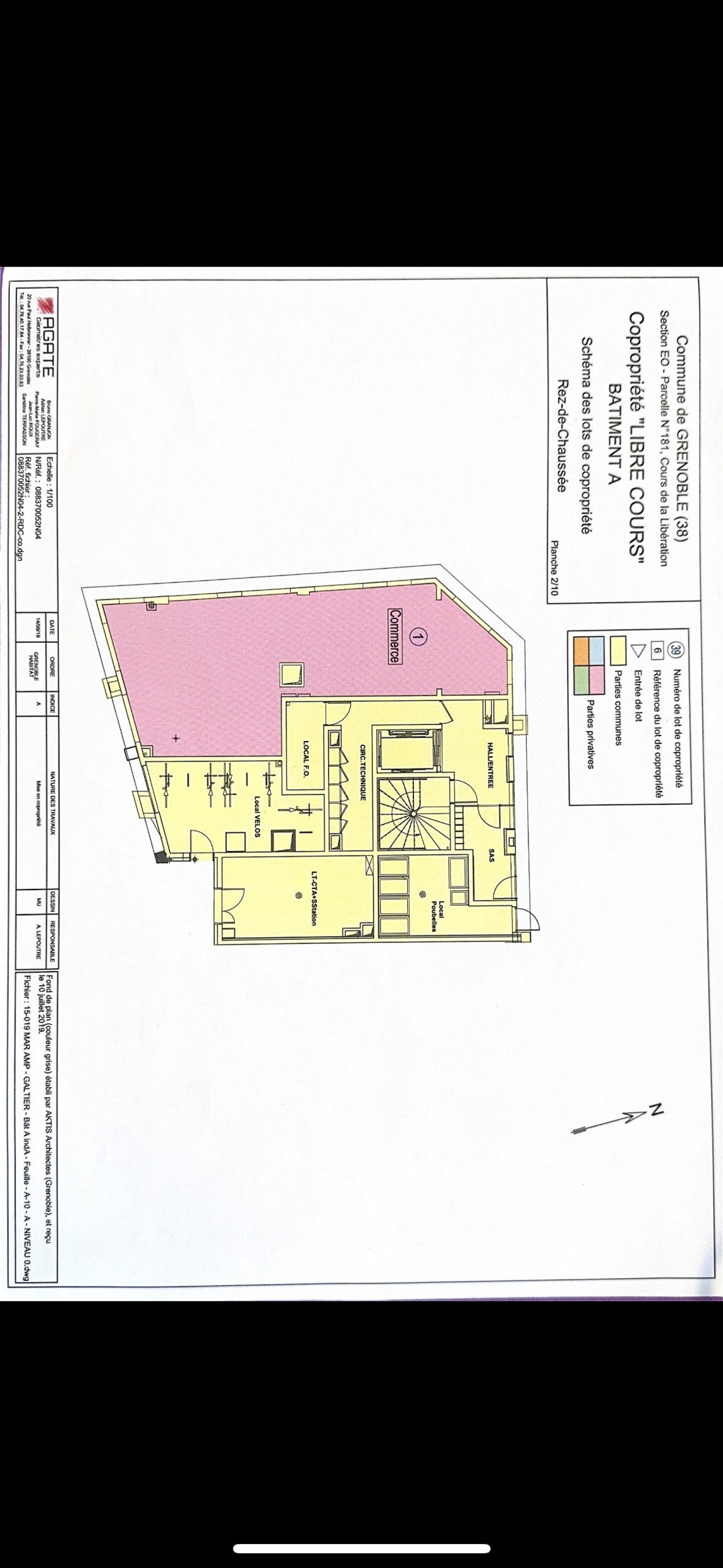
                        Local commercial 83 m²
Grenoble (38000)Caractéristiques de ce bien
Activités
- Type de transaction Local commercial
Agencement
- Superficie m2 83 m²
- Vitrine(s) a créer
Secteur
- Code postal 38000
- Ville Grenoble
Diagnostics & compléments
- Année de construction 2024
A propos de ce bien
Local commercial neuf - brut de béton, fluides en attente - vitrine à créer.
Situé sur le Cours de la Libération à Grenoble
Visibilité optimale sur axe passant - en face du tramway - Proche hyper-centre et rocade sud - Quartier résidentiel et dynamique en pleine expansion - Grand linéaire de vitrines
Loyer de 1384€ HT/mois
Charges de copropriété 454€ HT/an
Taxe foncière de 1660€ HT/an
Dépot de garantie de 4152€
Honoraires à la charge du preneur à hauteur de 15% HT du loyer annuel HT
Pour plus d'informations :
Tél : 06 88 45 65 58
Mail : a.vittoriano@ari-immobilier.fr
Diagnostics énergétiques
Diagnostics énergétiques
Informations financières
Autour du bien
- 
            Commerces et santé
            
- 
            Loisirs
            
- 
            Ecoles
            
- 
            Transports
            
- 
            Pratique
            
 
             
                                 
                                 
                                 
                                 
                                 
                                 
                                 
                                 
                                 
                                 
                                